Leave a Message

By providing your contact information to The Cindy Shetterly Team, your personal information will be processed in accordance with The Cindy Shetterly Team's Privacy Policy. By checking the box(es) below, you consent to receive communications regarding your real estate inquiries and related marketing and promotional updates in the manner selected by you. For SMS text messages, message frequency varies. Message and data rates may apply. You may opt out of receiving further communications from The Cindy Shetterly Team at any time. To opt out of receiving SMS text messages, reply STOP to unsubscribe.

Thank you for your message. We will be in touch with you shortly.

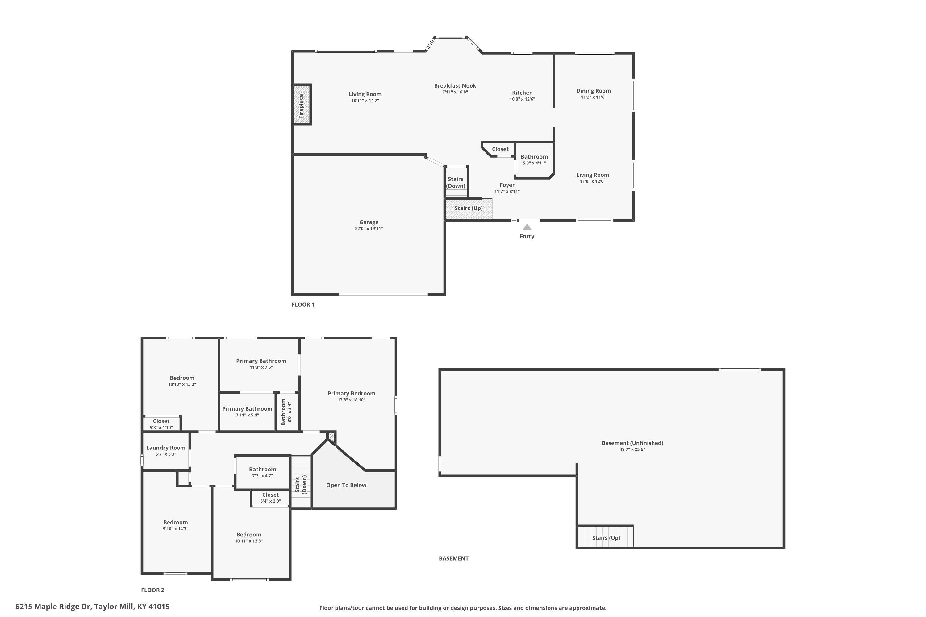
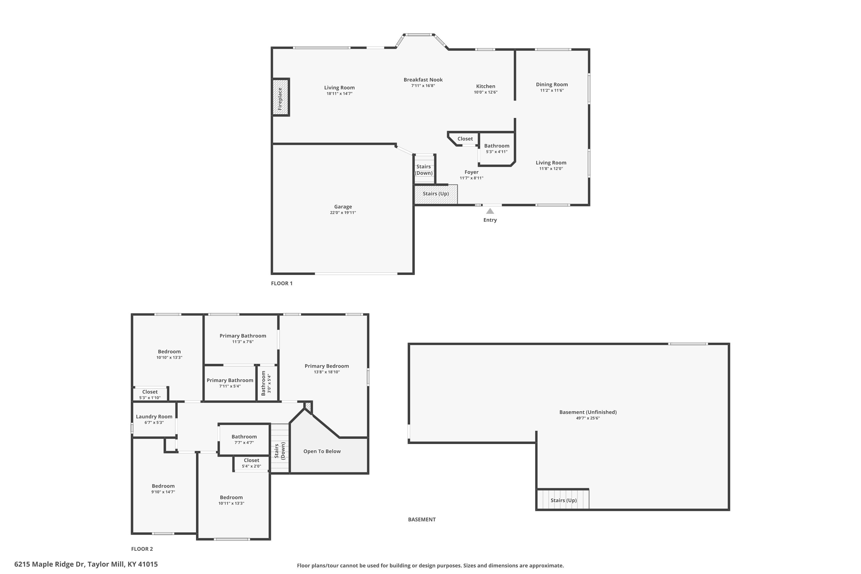
6215 Maple Ridge Drive

$449,000
6215 Maple Ridge Drive, Taylor Mill, KY 41015
6215 Maple Ridge Drive

6215 Maple Ridge Drive

$449,000

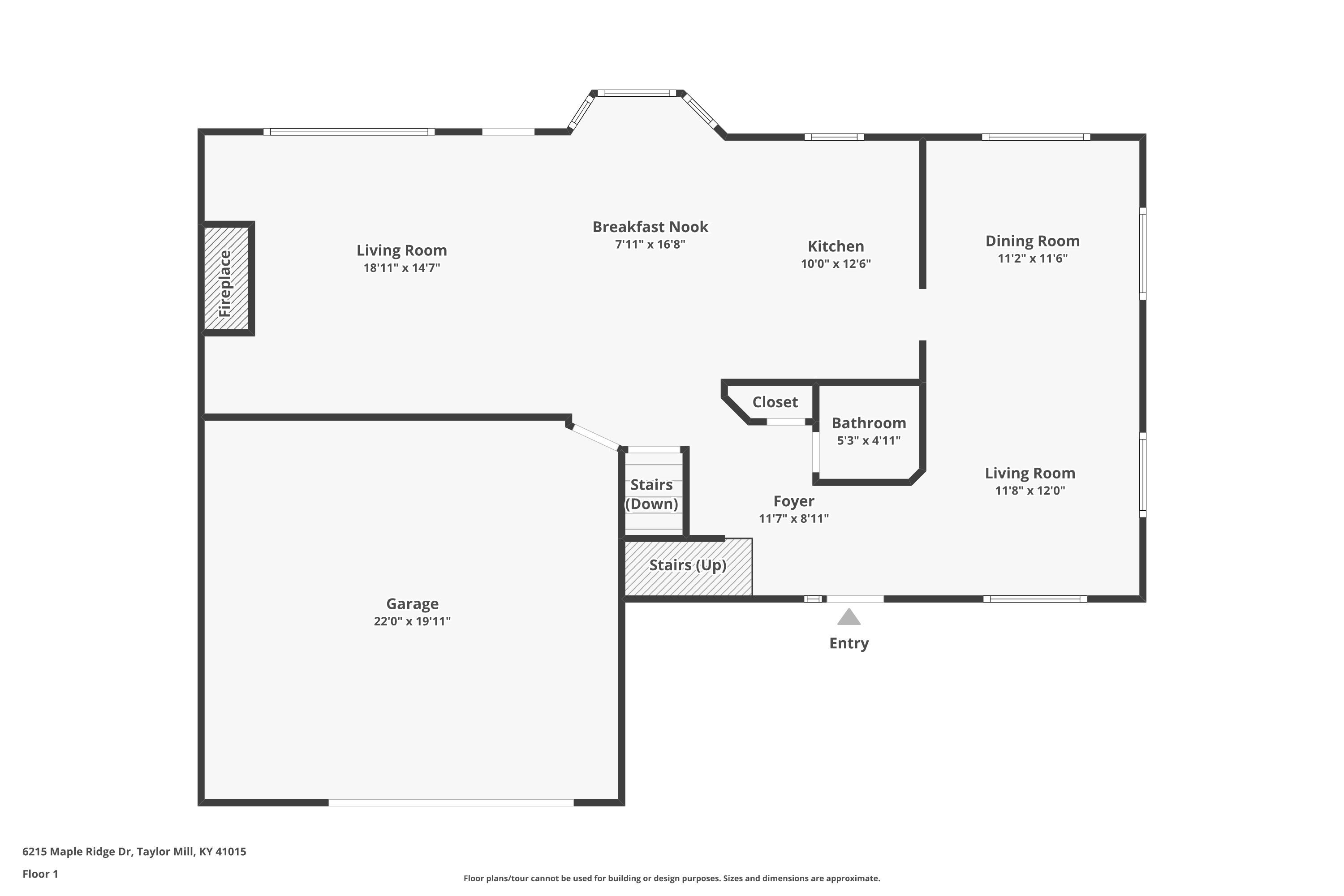
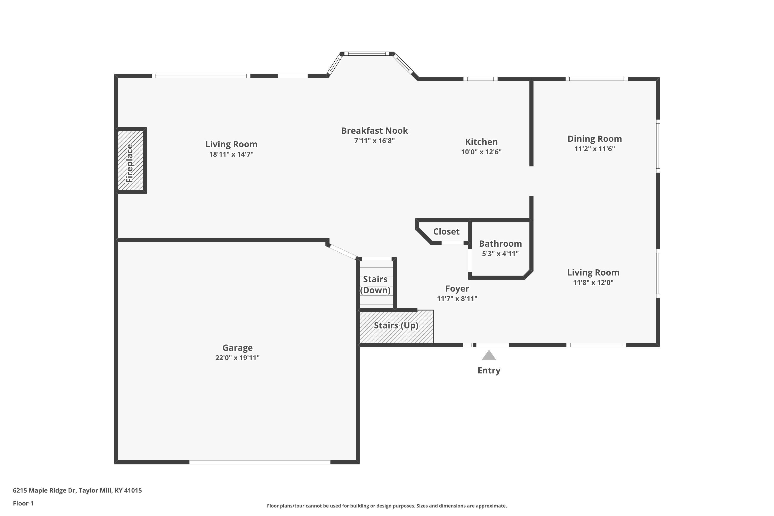
Impeccably maintained by its original owner, this four-bedroom, 2.5-bath two-story is a standout in highly desirable Taylor Creek--just minutes from shopping, dining, and the interstate. The first floor features extensive hardwood flooring and a thoughtfully designed open-concept layout where the kitchen flows seamlessly into the inviting family room. The kitchen offers stainless steel appliances, an island, abundant cabinetry, and a sunlit breakfast area, while the family room is anchored by a beautiful wood-burning fireplace and walks out to a spacious deck ideal for entertaining. A formal living room and dining room add classic elegance and flexibility for everyday living or special occasions.

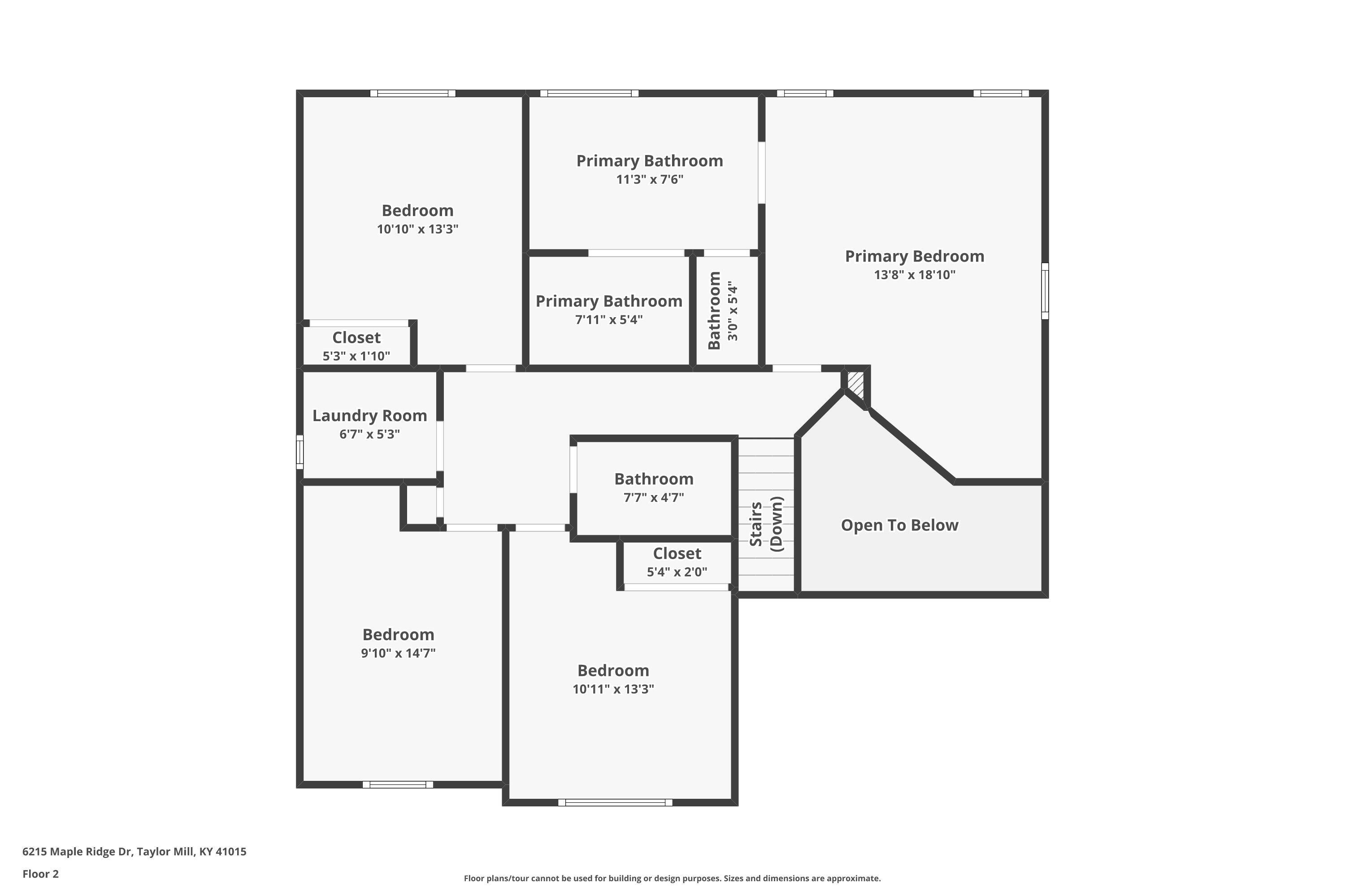
Upstairs, you'll find four generously sized bedrooms, including a primary suite with vaulted ceilings and a private en-suite bath. The walkout lower level is ready for your vision, complete with full bath rough-in, large window, and access to the backyard--perfect for future living space or recreation. A rare combination of meticulous care, timeless design, and an unbeatable location. Translation: this one checks all the boxes.
Cindy Shetterly
Cindy Shetterly Contact
Venus Bertucci
Venus Bertucci Contact

Features & Amenities

Interior

Total Bedrooms 4
Total Bathrooms 3
Full Bathrooms 2
Half Bathrooms 1
Laundry Room Laundry Room, Upper Level
Fireplace Brick, Wood Burning
Appliances Stainless Steel Appliance(s), Electric Cooktop, Electric Oven, Dishwasher, Disposal, Microwave, Refrigerator
Other Interior Features Laminate Counters, Kitchen Island, Walk-In Closet(s), Storage, High Speed Internet, Entrance Foyer, Eat-in Kitchen, Double Vanity, Crown Molding, Chandelier, Built-in Features, Ceiling Fan(s), High Ceilings, Multi Panel Doors, Natural Woodwork, Recessed Lighting, Vaulted Ceiling(s)

Exterior

Stories 2
Garage Space 2.0
Water Source Public
Utilities Cable Available, Natural Gas Available, Sewer Available, Water Available
ROOF Shingle
Lot Features Level, Sloped
Parking Driveway, Garage
Heat type Natural Gas, Heat Pump
Air Conditioning Central Air
Sewer Public Sewer
Substructure Poured Concrete

Area & Lot

Status Pending
LIVING SPACE 2,274 Sq.Ft.
LOT SIZE 8,875 Sq.Ft.
MLS® ID 639001
Type Residential
Year Built 1996
Neighborhood Kenton County
Architecture Styles Traditional
View Description Neighborhood
ELEMENTARY SCHOOL Ft Wright Elementary
MIDDLE SCHOOL Woodland Middle School
HIGH SCHOOL Scott High
School District Kenton Co Public

Financial

SALES PRICE $449,000
image

Schedule a Showing

We would love to show you our beautiful property. Please select your preferred date and time below. An agent will be in touch shortly to confirm your appointment.

Schedule a Showing

We would love to show you our beautiful property. Please select your preferred date and time below. An agent will be in touch shortly to confirm your appointment.

Thank you for your interest in 6215 Maple Ridge Drive, Taylor Mill, KY 41015. We are reviewing your request and will be in touch shortly!

Mortgage Calculator

Estimate your monthly mortgage payment, including the principal and interest, property taxes, and HOA. Adjust the values to generate a more accurate rate.

All estimates are provided for informational purposes only. Actual amounts may vary.
$0,000 Your Payment 20 15 65
$0,000 Your Payment
Kenton County

Kenton County

Read more

Work With Us

We're committed to guiding you every step of the way—whether you're buying a home, selling a property, or securing a mortgage. Whatever your needs, we've got you covered.

Contact Us