Leave a Message

By providing your contact information to The Cindy Shetterly Team, your personal information will be processed in accordance with The Cindy Shetterly Team's Privacy Policy. By checking the box(es) below, you consent to receive communications regarding your real estate inquiries and related marketing and promotional updates in the manner selected by you. For SMS text messages, message frequency varies. Message and data rates may apply. You may opt out of receiving further communications from The Cindy Shetterly Team at any time. To opt out of receiving SMS text messages, reply STOP to unsubscribe.

Thank you for your message. We will be in touch with you shortly.

1479 Hands Pike

$434,500
1479 Hands Pike, Fort Mitchell, KY 41017
1479 Hands Pike

1479 Hands Pike

$434,500

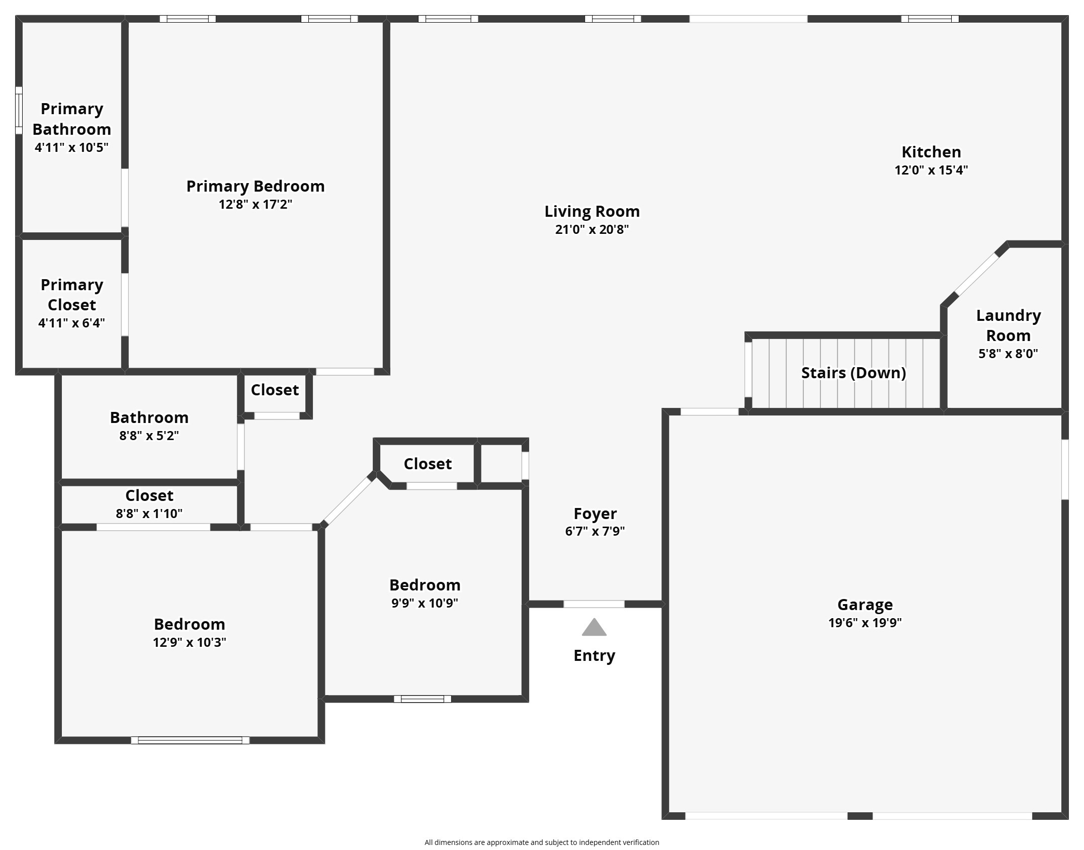
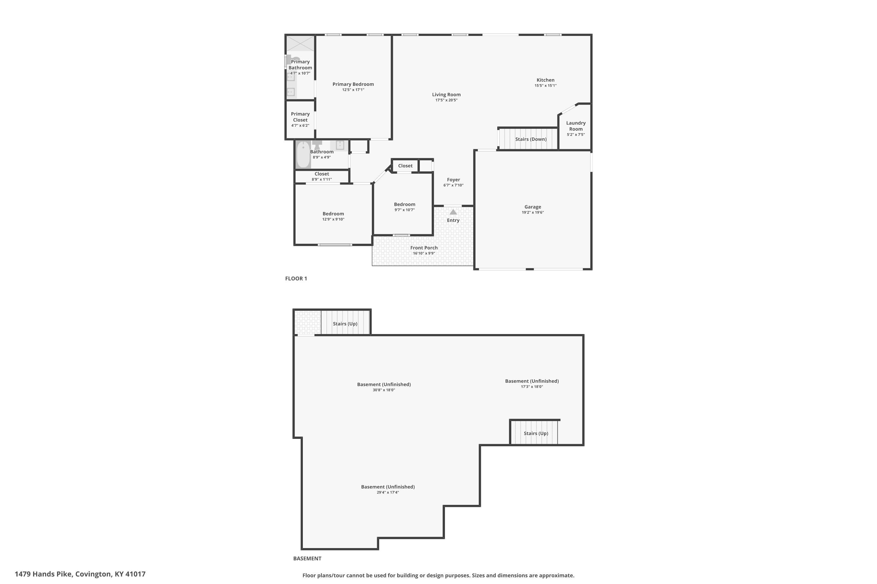
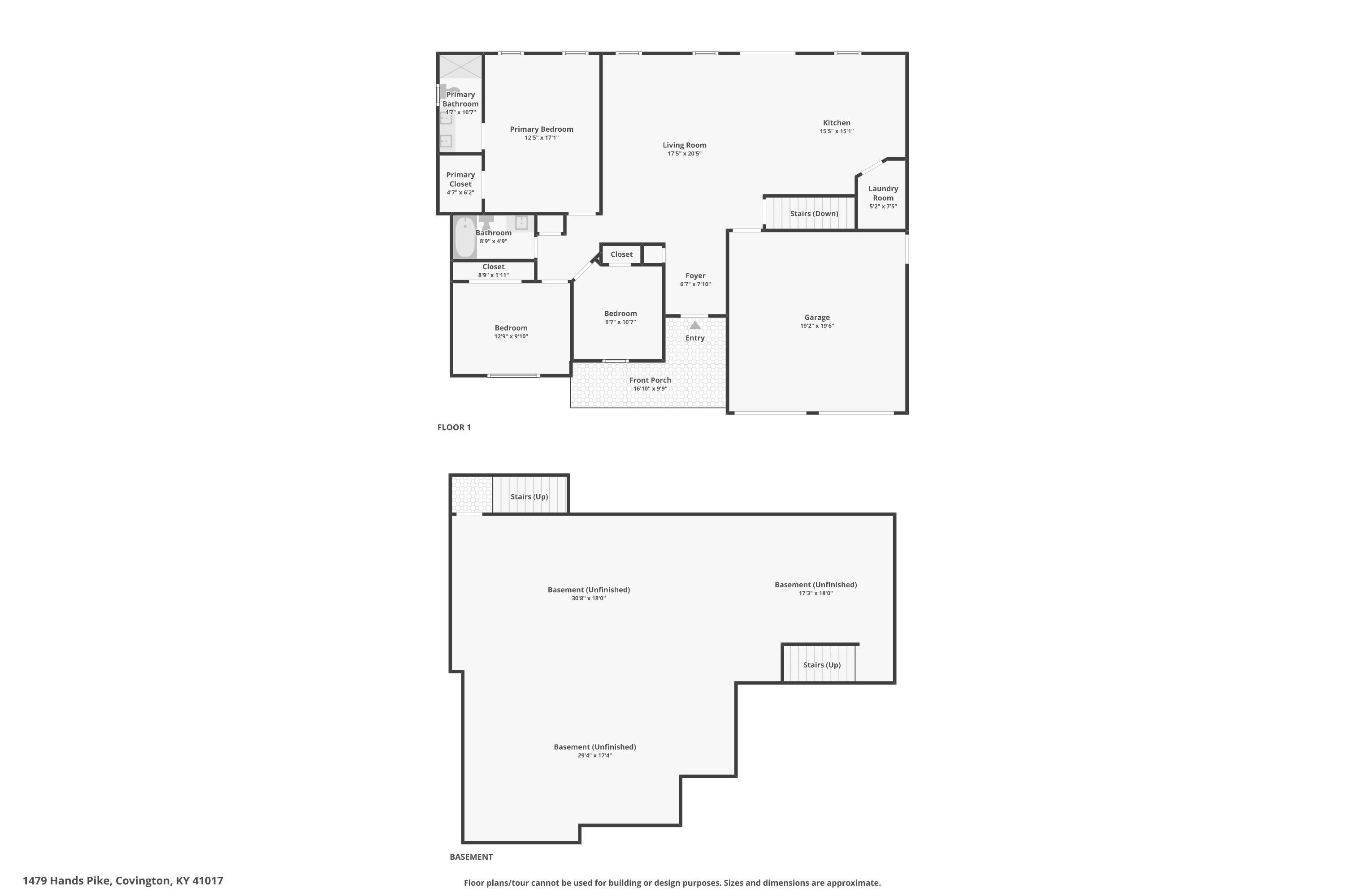
Brand new, custom-built ranch home nestled on a wooded half-acre lot. Designed for effortless one-level living, this stunning home features a thoughtfully planned open-concept main living area and three generously sized bedrooms, including a primary suite with a spacious ensuite bath and walk-in closet.

The expansive unfinished walkout basement offers abundant storage and exceptional potential for future finished living space. A two-car garage adds everyday convenience.

Set on a level, wooded lot that provides privacy and a serene backdrop, yet remains just minutes from shopping, dining, and major commuter routes. Quality craftsmanship, timeless design, and move in ready... this is the one you have been waiting for.
Cindy Shetterly
Cindy Shetterly Contact
Venus Bertucci
Venus Bertucci Contact

Features & Amenities

Interior

Total Bedrooms 3
Total Bathrooms 2
Full Bathrooms 2
Laundry Room Laundry Room, Main Level
Appliances Electric Cooktop, Electric Oven, Dishwasher, Refrigerator
Other Interior Features Kitchen Island, Walk-In Closet(s), Storage, Stone Counters, Open Floorplan, High Speed Internet, Granite Counters, Entrance Foyer, Eat-in Kitchen, Double Vanity, Ceiling Fan(s), High Ceilings, Multi Panel Doors, Recessed Lighting

Exterior

Stories 1
Garage Space 2.0
Water Source Public
Utilities Cable Available
ROOF Shingle
Lot Features Cleared, Wooded
Parking Driveway, Garage
Heat type Natural Gas
Air Conditioning Central Air
Sewer Septic Tank
Substructure Poured Concrete
Other Exterior Features Private Yard

Area & Lot

Status For Sale
LOT SIZE 0.57 Acres
MLS® ID 639394
Type Residential
Year Built 2025
Neighborhood Kenton County
Architecture Styles Ranch
View Description Neighborhood, Trees/Woods
ELEMENTARY SCHOOL Taylor Mill Elementary
MIDDLE SCHOOL Woodland Middle School
HIGH SCHOOL Scott High
School District Kenton Co Public

Financial

SALES PRICE $434,500
image

Schedule a Showing

We would love to show you our beautiful property. Please select your preferred date and time below. An agent will be in touch shortly to confirm your appointment.

Schedule a Showing

We would love to show you our beautiful property. Please select your preferred date and time below. An agent will be in touch shortly to confirm your appointment.

Thank you for your interest in 1479 Hands Pike, Fort Mitchell, KY 41017. We are reviewing your request and will be in touch shortly!

Mortgage Calculator

Estimate your monthly mortgage payment, including the principal and interest, property taxes, and HOA. Adjust the values to generate a more accurate rate.

All estimates are provided for informational purposes only. Actual amounts may vary.
$0,000 Your Payment 20 15 65
$0,000 Your Payment
Kenton County

Kenton County

Read more

Work With Us

We're committed to guiding you every step of the way—whether you're buying a home, selling a property, or securing a mortgage. Whatever your needs, we've got you covered.

Contact Us